Aller à :

  • Aller à la recherche
  • Aller au menu principal
  • Aller au contenu
0
  • Acheter
  • Louer
  • Immobilier professionnel
  • Estimer
  • Qui sommes-nous ?
  • Nous recrutons
  • Acheter à l'international
  • Actualités
  • Blog
0
VotreRecherche
Budget
entre et €
Min €
Max €
Surface
entre et m²
Min m²
Max m²
Pièces
entre et Pièces
Min Pièces
Max Pièces
Critères supplémentaires
  1. Accueil
  2. Vente
  3. Paris
  4. Paris
  5. Appartement
  6. T2
  7. Appartement 2 pieces sur cour
Vendu
Réf : IVAP2200105221
Appartement 41.35 m²
Nombre de pièces 2
Nombre de chambres 1
Nombre de salles de bain 1

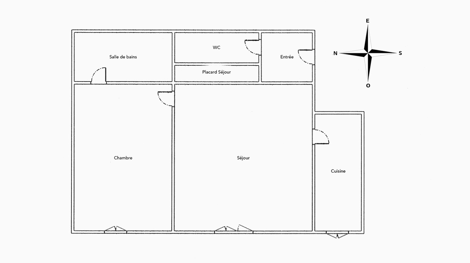
APPARTEMENT 2 PIECES SUR COUR Paris (75015)

A deux pas de la rue de vaugirard et du métro ligne 12 au sein d'une belle copropriété avec gardien, un appartement à rénover situé coté cour et orienté ouest, il comprend deux pièces principales avec possibilité en rénovation de réunir la cuisine et le séjour (cloison), une salle de bains, un wc séparé, une cave parfaitement saine de près de 5m2 et un emplacement de stationnement, local vélos/poussettes Prix 325 000 euros honoraires TTC inclus à la charge de l'acquéreur 5% du prix du bien hors honoraires. Prix du bien hors honoraires 309 524 euros. Pour organiser une visite ou plus d'infos me contacter : Sophie Durand EI agent mandataire en immobilier immatriculé au registre spécial des agents commerciaux (rsac) du tribunal de commerce de Bobigny sous le numéro 511047870. Information d'affichage énergétique sur ce bien DPE F indice 249 GES F indice 76. Montant estimé des dépenses annuelles d'énergie pour un usage standard : entre 1270 euros et 1760 euros . Prix moyen des énergies indexés sur l'année 2023 (abonnement inclus). Les informations sur les risques auxquels ce bien est exposé sont disponibles sur le site Géorisques

Annonce proposée par un agent commercial

  • Général
  • Détails +
  • DPE
  • Copropriété
  • Quartier
Caractérisque Valeurs
Code postal 75015
Surface habitable (m²) 41,35 m²
Surface loi Carrez (m²) 41,35 m²
Nombre de chambre(s) 1
Nombre de pièces 2
Etage 1
Ascenseur NON
Caractérisque Valeurs
Nb de salle de bains 1
Cuisine Séparée
Type de cuisine Equipée
Mode de chauffage Fioul
Type de chauffage TRAD_TYPE_CHAUFF_CHAUDIERE
Format de chauffage Collectif
Interphone NON
Visiophone NON
Cave OUI
Nombre de parking 1
Surface cave (m²) 5
Exposition Ouest
Année de construction 1964
DPE GES
Caractérisque Valeurs
Copropriété OUI
Lot n° 33
nombre de lots 40
Quote Part annuelle des charges 2 600 €
plan de sauvegarde NON
statut du syndic pas de procédure en cours
  • Commerces et santé
  • Loisirs
  • Ecoles
  • Transports
  • Pratique
Partager le bien
Nos outils
Imprimer Imprimer
Calculatrice financière

* Champ obligatoire

Partager l'annonce

* champs obligatoires

Les informations recueillies sur ce formulaire sont enregistrées dans un fichier informatisé par La Boite Immo agissant comme Sous-traitant du traitement pour la gestion de la clientèle/prospects de l'Agence / du Réseau qui reste Responsable du Traitement de vos Données personnelles.
La base légale du traitement repose sur l’intérêt légitime de l'Agence / du Réseau.
Elles sont conservées jusqu'à demande de suppression et sont destinées à l'Agence / au Réseau.
Conformément à la loi « informatique et libertés », vous pouvez exercer votre droit d'accès aux données vous concernant et les faire rectifier en contactant l'Agence / le Réseau.
Si vous estimez, après avoir contacté l'Agence / le Réseau, que vos droits « Informatique et Libertés » ne sont pas respectés, vous pouvez adresser une réclamation à la CNIL.
Nous vous informons de l’existence de la liste d'opposition au démarchage téléphonique « Bloctel », sur laquelle vous pouvez vous inscrire ici : https://conso.bloctel.fr/ 
Dans le cadre de la protection des Données personnelles, nous vous invitons à ne pas inscrire de Données sensibles dans le champ de saisie libre
Ce site est protégé par reCAPTCHA, les Politiques de Confidentialité et les Conditions d'Utilisation de Google s'appliquent.

Partager avec vos proches

Facebook Facebook
Messenger Messenger
Twitter Twitter
WhatsApp WhatsApp
LinkedIn LinkedIn
Copier le lien Copier le lien
Détail des diagnostics énergétiques
DPE GES

Logement à consommation énergétique excessive : classe F

Montant estimé des dépenses annuelles d'énergie pour un usage standard est compris entre 1 270 € et 1 760 € . Prix moyens des énergies indexés sur les années 2021, 2022 et 2023 (abonnements compris).

Contactez-nous

Remplissez ce formulaire, nous ferons de notre mieux pour vous répondre dans les meilleurs délais.

IDIMMO
04.32.81.85.60
E-mail info@eric-mey.com

4 Rue de Tourre 84100 Orange

TRAD_MELTEM_voscoordonnees
TRAD_MELTEM_voredemande
Règlementation

* Champ obligatoire

Les informations recueillies sur ce formulaire sont enregistrées dans un fichier informatisé par La Boite Immo agissant comme Sous-traitant du traitement pour la gestion de la clientèle/prospects de l'Agence / du Réseau qui reste Responsable du Traitement de vos Données personnelles.
La base légale du traitement repose sur l’intérêt légitime de l'Agence / du Réseau.
Elles sont conservées jusqu'à demande de suppression et sont destinées à l'Agence / au Réseau.
Conformément à la loi « informatique et libertés », vous pouvez exercer votre droit d'accès aux données vous concernant et les faire rectifier en contactant l'Agence / le Réseau.
Si vous estimez, après avoir contacté l'Agence / le Réseau, que vos droits « Informatique et Libertés » ne sont pas respectés, vous pouvez adresser une réclamation à la CNIL.
Nous vous informons de l’existence de la liste d'opposition au démarchage téléphonique « Bloctel », sur laquelle vous pouvez vous inscrire ici : https://conso.bloctel.fr/ 
Dans le cadre de la protection des Données personnelles, nous vous invitons à ne pas inscrire de Données sensibles dans le champ de saisie libre
Ce site est protégé par reCAPTCHA, les Politiques de Confidentialité et les Conditions d'Utilisation de Google s'appliquent.

Se connecter
Espace propriétaire
Adhérents
Page d'accueil

© 2026 | Tous droits réservés | Traduction powered by Google |

  • Nos honoraires
  • Plan du site
  • Mentions légales
  • Nos liens
  • Politique RGPD

Comme beaucoup, notre site utilise les cookies

On aimerait vous accompagner pendant votre visite. En poursuivant, vous acceptez l'utilisation des cookies par ce site, afin de vous proposer des contenus adaptés et réaliser des statistiques !

Paramétrer

Cookies fonctionnelsCes cookies sont indispensables à la navigation sur le site, pour vous garantir un fonctionnement optimal. Ils ne peuvent donc pas être désactivés.

Statistiques de visitesPour améliorer votre expérience, on a besoin de savoir ce qui vous intéresse !
Les données récoltées sont anonymisées.

?

Google Analytics

En savoir plus